В любой квартире или жилом доме спальня занимает одно из самых главных мест, где человек проводит приблизительно треть своей жизни. Это место, а именно кровать, служит нам для ночного отдыха и не только. В связи с этим у каждого человека должна быть удобная и комфортная спальная кровать, где бы можно было как можно лучше расслабиться.
Кровать для сна должна быть максимально комфортной, ведь от здорового и крепкого сна зависит то, с каким настроением мы встретим следующее утро и проведём день. А для того чтобы ваш ночной отдых был оптимальным, кровать должна обязательно соответствовать нескольким параметрам, без которых нормальный сон невозможен.
Если вы проживаете самостоятельно или в вашей семье есть члены семьи, которые предпочитают спать отдельно, то наилучшим решением будет односпальная деревянная кровать с ящиками соответствующего размера.

Односпальные кровати с ящиками 90 х 200 см являются оптимальным вариантом для ночного отдыха человека. Конечно же, лучше, если такие кровати будут выполнены из натурального дерева, так как всё натуральное более безопасно для человеческого здоровья. Тем не менее, можно использовать кровати из ДСП или МДФ, а также других материалов, например, из металла. Если вам такие размеры не подходят, всегда есть возможность заказать кровать по индивидуальным параметрам.
По форме односпальные кровати также могут различаться. В зависимости от того, как вы хотите её расположить в своей спальной комнате, кровать может иметь боковую спинку или же массивное изголовье, которое ставится к стенке.
Кровать односпальная с боковой спинкой и ящиками наиболее распространённый вариант для размещения в спальне. Наличие ящиков поможет решить вопросы с хранением постельного белья. А то, что они встроены в саму конструкцию кровати, упрощает процесс уборки белья в разы.

Относительно цвета и стиля оформления односпальной кровати, то здесь существует огромное количество вариантов. Всё зависит в основном от ваших предпочтений и стиля дизайна вашей спальни. Для детских спален можно использовать кровати, выполненные в причудливых формах или, к примеру, в виде машинки.

Для самых маленьких детей, конечно же, следует покупать односпальные кроватки с бортиками, которые защитят ребёнка от падения.

Кровать-тахта
Тахта представляет собой тип спальной мебели, внешне имеющей много общего с диваном. То есть, кровать-тахту можно использовать как место для сидения, так и в качестве спальной кровати. Сегодня мебельные магазины предлагают широчайший выбор самых разнообразных кроватей в виде тахты, которые могут иметь различные размеры, иметь ящики для белья, а также одну или две спинки. Чаще всего тахты изготавливают из массивов деревьев или же из ламинированного ДСП. Вы можете выбрать для своей спальни любой тип тахты в зависимости от ваших предпочтений и пожеланий.
Односпальная кровать тахта с ящиками имеет неоспоримое преимущество перед другими типами односпальных кроватей: она облагораживают комнату, делая из неё не спальню, а полноценную гостиную. То есть, грамотно установив тахту в определённом месте помещения, при надобности можно отойти от использования в конкретной комнате интерьера спальни.

Односпальные кровати с ящиками для хранения прекрасно подходят для использования в квартирах небольших размеров, в детских спальнях и т.п. Поскольку ящики, как правило, расположены внизу тахты или кровати, то они не загромождают пространство, а являются как бы продолжением кровати. В любом случае, выдвижные или выкатываемые ящики – это ещё и удобство, поскольку в них всегда можно сложить постель или другие вещи (например, игрушки в детской комнате). Также ящики могут выступать и в виде декоративных элементов кровати-тахты, тем самым украшая вид самой кровати.
А для тех потребителей, кто желает сэкономить пространство в спальной комнате или гостиной, предлагаются модели кроватей с выдвижным спальным местом. Это означает, что в сложенном виде кровать-тахта может быть использована как односпальная кровать. А вот если её разложить, то получается два спальных места за счёт выдвижного механизма, на котором обустроен ещё один матрас. Такая кровать-тахта преимущественно должна быть белая, и она может стать весьма рациональным решением во многих малогабаритных гостевых и спальных комнатах.

Цена на односпальные кровати весьма различная, поскольку она зависит от размеров, материала изготовления, конструкции и других характеристик такого типа мебели.
Делаем односпальную кровать своими руками
Сделать односпальную кровать с ящиками своими руками, в принципе, сможет почти любой человек, хотя бы немного знакомый со столярным делом. Если вам понадобилась односпальная кровать, которую вы хотите сделать самостоятельно, то, прежде всего, вам понадобится составить её чертёж, подобрать необходимый материал для изготовления, а также для сборки всей конструкции.
Чтобы определиться с конкретной моделью кровати, задумайтесь об общем дизайне спальни, её назначении, наличии необходимого пространства. Наиболее подходящим вариантом для создания односпальной кровати своими руками будет применение конструкции, которая будет иметь подиум и выдвижные ящики под ним. Как вариант, выдвижные ящики можно установить и по бокам конструкции или просто как отдельные элементы по бокам кровати. Также можно над ящиками соорудить столешницу, для размещения лампы и других мелких предметов интерьера.
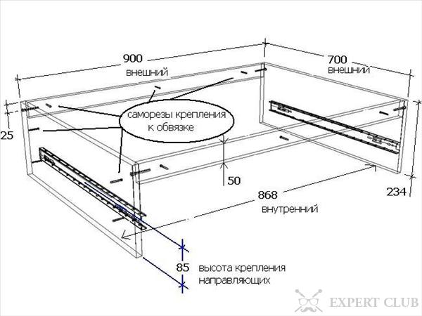
Ниже мы предлагаем примерныйфото-чертёж односпальной кровати с ящиками внизу.

Не забудьте приготовить необходимые инструменты для сборки кровати. В качестве материала можно использовать деревянные доски, плиты ДСП или МДФ. Для основы каркаса и дна ящиков можно применить фанеру. В конечном итоге возможно использование обивочной ткани или других материалов. Собственно, таким образом можно создать совершенно уникальную и красивую кровать для вашей спальни.
На видео в этой статье вы можете посмотреть, как изготовить кровать с ящиками самостоятельно.

